gtag('consent', 'update', {'ad_user_data': 'granted','ad_personalization': 'granted','ad_storage': 'granted','analytics_storage': 'granted' });
Group 88.jpg

Luxe Villa te Koop: Meesterwerk van Architectuur en Vakmanschap in Benissa

Prijs

€2.595.000

Woonoppervlakte 363m2

Perceeloppervlakte 800m2

Aantal slaapkamers 4

Aantal badkamers 4

Omschrijving

Luxe Villa te Koop: Meesterwerk van Architectuur en Vakmanschap in Benissa

Ontdek deze ongeëvenaarde villa in Benissa, een werkelijk uitzonderlijk woningontwerp dat zich onderscheidt door de topkwaliteit van de bouw en de afwerking. Gelegen op een prestigieuze locatie op korte loopafstand van het charmante La Fustera-strand, biedt deze villa alles voor wie op zoek is naar luxe en comfort. De woning combineert ongeëvenaard vakmanschap met moderne voorzieningen en is ideaal voor diegenen die op zoek zijn naar het beste in luxe wonen.

Ruimtelijke Indeling en Design
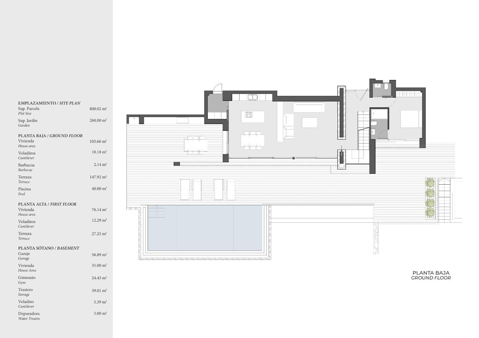
Bij binnenkomst in deze schitterende villa valt direct de harmonieuze indeling op. De begane grond biedt een royale woonkamer, die naadloos overgaat in een volledig uitgeruste open keuken. De keuze voor natuurlijke materialen draagt bij aan de warme en luxe sfeer die door het hele huis heerst. De open keuken is niet alleen functioneel, maar ook een plek waar men kan genieten van culinaire creaties. Een praktische bijkeuken biedt extra opbergruimte, terwijl een ruime slaapkamer met en-suite badkamer een privé toevluchtsoord biedt. De begane grond wordt compleet gemaakt met een gasten toilet.

De connectie tussen binnen- en buitenruimte is fenomenaal. Via grote schuifdeuren bereikt men het adembenemende terras met infinity pool. Het terras is een ware oase van rust, met een buitenkeuken en een weelderige tuin die een perfect decor vormt voor het genieten van het mediterraanse klimaat.

Slaapkamers en Badkamers: Luxe en Privacy
De bovenverdieping van de villa biedt twee royale slaapkamers, beide met hun eigen en-suite badkamer. Deze privévertrekken bieden niet alleen luxe, maar ook rust en sereniteit, perfect om van de omliggende natuur en het prachtige uitzicht op de zee te genieten. De slaapkamers zijn ontworpen met het oog op privacy en comfort, waardoor het de ideale plek is om tot rust te komen na een dag van avontuur in de regio.

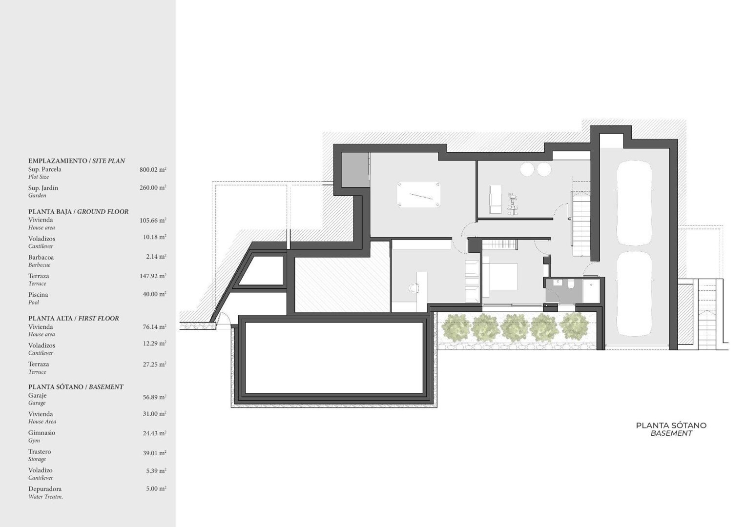
Kelderverdieping: Multifunctioneel en Praktisch
De kelderverdieping van deze exclusieve villa is net zo indrukwekkend als de rest van de woning. Hier bevindt zich een vierde slaapkamer, verlicht door natuurlijk daglicht, wat zorgt voor een frisse en levendige sfeer. Deze slaapkamer heeft bovendien een eigen badkamer, wat het tot een perfect gastenverblijf maakt. Daarnaast is er een fitnessruimte, ideaal voor wie gezondheid en welzijn hoog in het vaandel heeft staan. Ook is er een kantoorruimte die perfect is voor thuiswerkers of professionals die op zoek zijn naar een rustige werkplek. De kelder biedt verder een multifunctionele ruimte die naar wens kan worden ingericht. Een dubbele garage biedt voldoende parkeerruimte voor meerdere voertuigen, wat de praktische voordelen van deze villa compleet maakt.

Luxe Wonen op Toplocatie
Deze villa is het toonbeeld van luxe en biedt een levensstijl van het hoogste niveau. Elke kamer is ontworpen met oog voor detail en vakmanschap, en de hoogwaardige afwerking is overal terug te vinden. Van het adembenemende uitzicht op de zee tot de perfecte combinatie van binnen- en buitenruimte, deze villa biedt een onvergelijkbare woonervaring.

Met een locatie op loopafstand van La Fustera en het prachtige zandstrand, zijn zowel de rust van het privéterrein als de nabijheid van voorzieningen perfect in balans. Deze woning is ideaal voor wie het ultieme luxe leven in de Costa Blanca wil ervaren, met alles binnen handbereik.

Grijp de kans om dit meesterwerk van architectuur en vakmanschap te bezitten en geniet van het beste dat de regio te bieden heeft.

VossenCasas is trots om deze uitzonderlijke villa aan te bieden en staat klaar om u te begeleiden in het realiseren van uw droomwoning aan de Costa Blanca.

Details
Kenmerken

Details

Prijs €2.595.000
Type object Villa
Referentienummer 12139VCMI
Plaatsnaam Benissa
Regio Alicante

Kenmerken

Woonoppervlakte 363m2
Perceeloppervlakte 800m2
Aantal slaapkamers 4
Aantal badkamers 4
Zwembad Ja
Garage Ja
Tuin Nee
Peter Vos
Makelaar
Reageer op dit object
Deel dit object via social media

Bekijk ook

19cdd8fd3b594ab80769e813e05c1c5d01b04845.jpg
d4d020613afa6e5ba367cf2c2fa457083f24152e.jpg
dddf39d682790368ee086a1bee61371e116a7bc3.jpg
19cdd8fd3b594ab80769e813e05c1c5d01b04845.jpg Bekijk dit object
€2.760.000
Jávea

VCM22017

455m²
2000m²
4
5
31c5711887b0b1398a2b2a8d2b6272fa1058b674.jpg
aa48c82a9fb8a7206b4b7cc88a9b618312b0740d.jpg
dad76c2e49fb34a71408c59567ff08c33c4cf71a.jpg
31c5711887b0b1398a2b2a8d2b6272fa1058b674.jpg Bekijk dit object
€2.700.000
Moraira

12515VCMI

466m²
2040m²
5
5
Bekijk dit object
€2.520.000
Calpe

VCO4353

800m²
1133m²
4
6