gtag('consent', 'update', {'ad_user_data': 'granted','ad_personalization': 'granted','ad_storage': 'granted','analytics_storage': 'granted' });
Group 88.jpg

Luxury New-Build Villas with Sea Views in Benitachell

Price

€875.000

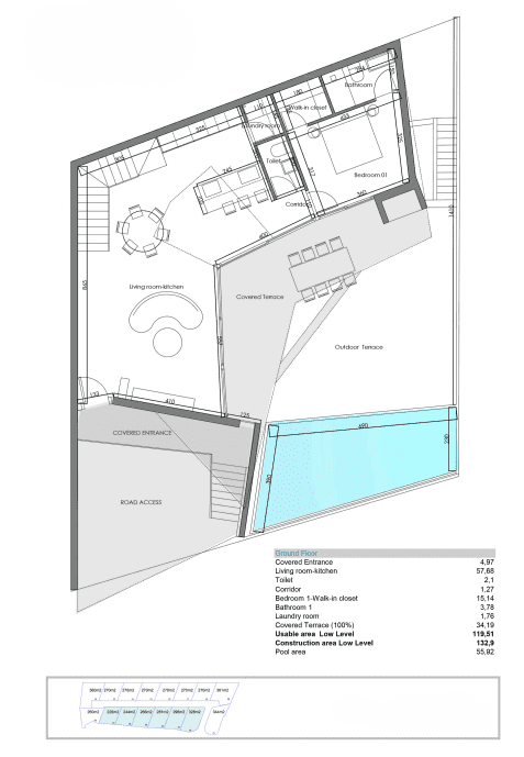
Woonoppervlakte 290m2

Aantal slaapkamers 3

Aantal badkamers 3

Omschrijving

Luxury New-Build Villas with Sea Views in Benitachell

An exclusive living experience on the Costa Blanca
In Benitachell, on the Alicante coastline, a prestigious new development is taking shape, consisting of sixteen detached villas designed to strike the perfect balance between luxury, comfort and elegance. These homes offer a refined lifestyle where every detail has been carefully considered to meet the needs of modern homeowners. The breathtaking sea views provide a natural backdrop, giving each villa a truly distinctive character.

Space, comfort and sophistication
Each villa offers an impressive living area of 290 m² and is available with three or four bedrooms. Every bedroom comes with its own en-suite bathroom, ensuring both privacy and comfort. The generous layouts and thoughtful design create a welcoming living environment where functionality and style blend seamlessly.

Private features for an exclusive lifestyle
These villas have been created to make the most of the Mediterranean climate. Each property includes a private swimming pool, a barbecue area and a relaxing chill-out space. Whether you wish to soak up the sun or spend quality time with family and friends, these outdoor areas turn every day into a special occasion. A private garage and a practical storage room add further convenience and comfort.

Advanced options for enhanced living
In addition to the standard features, the villas also offer a range of optional extras designed to take modern living to the next level. Buyers can choose from a home automation system, smart lighting and underfloor heating. These premium technologies make everyday life not only more comfortable, but also more efficient and tailored to individual needs.

Limited availability and attractive pricing
Of the sixteen villas in this development, only seven remain available, underlining the exclusive and highly sought-after nature of the project. Prices start from €875,000, making these homes an outstanding investment in one of the most desirable regions of the Costa Blanca.

Your new home awaits
This unique combination of location, design and premium amenities makes this development the ideal choice for those seeking a stylish home by the Mediterranean Sea. For further information or to arrange a viewing, you can rely on the expertise of VossenCasas, your trusted partner in exclusive Costa Blanca real estate.

Details
Kenmerken

Details

Prijs €875.000
Type object Villa
Referentienummer VCAVAVS 57375
Plaatsnaam Benitachell
Regio Alicante

Kenmerken

Woonoppervlakte 290m2
Aantal slaapkamers 3
Aantal badkamers 3
Zwembad Ja
Garage Nee
Tuin Nee
Peter Vos
Makelaar
Reageer op dit object
Deel dit object via social media
086c1fb7176702377b02bc3765b979948c8611d0.jpg
52d693d8da3d76c7977318ea93b544eb8f03a090.jpg
f5cc73e92680d0b96ce4d594555f63dbf4ce4d8e.jpg
086c1fb7176702377b02bc3765b979948c8611d0.jpg View this object
€823.809
Alcalali

VCP11173

262m²
1000m²
4
5
e9752236538d8765738d524de472965b5fe18f7d.jpg
6cfd39b7c5889068f308af462f75a5e3ac4c38f7.jpg
2d0395feb5fd864bb4c60ff10cf46c7ec1ba00b2.jpg
e9752236538d8765738d524de472965b5fe18f7d.jpg View this object
€850.000
Moraira

VCHH2572V-E

246m²
1234m²
3
3
fb5311b1d934a4debe0cfbe655eb483bfe6af069.jpg
074a0745dcb694334b3d0b1d7e94b2e062d8714e.jpg
31c57020ae3500907eacedc24e81ae70ee802292.jpg
fb5311b1d934a4debe0cfbe655eb483bfe6af069.jpg View this object
€945.000
Alcalalí

VCO4361

204m²
600m²
4
3